Céline Vekemans . Architecte d'intérieur          Grésivaudan, Grenoble, Chambéry

logo
Appartement sur plan

Etude d'un appartement / d'une maison sur plan

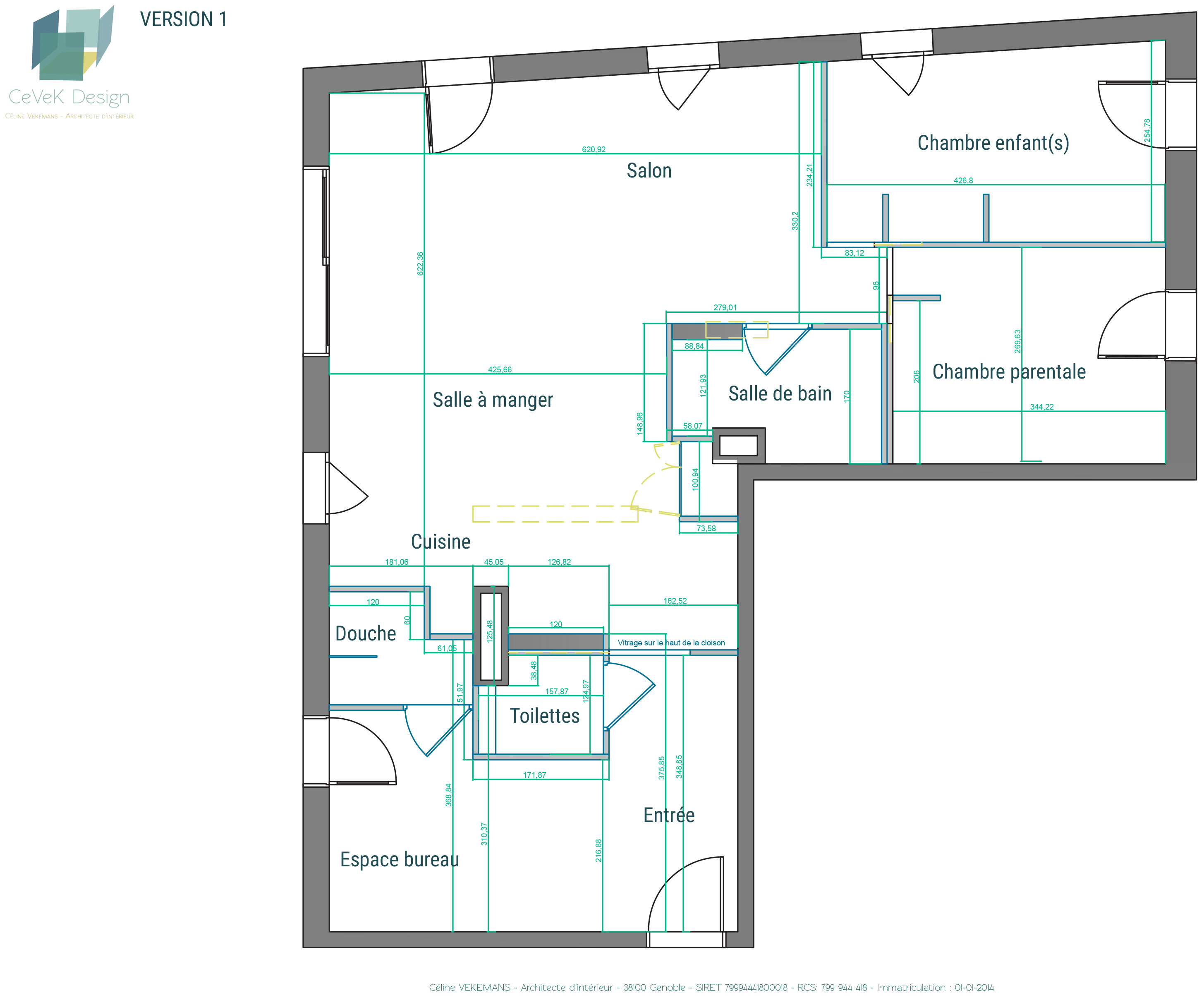
Il arrive que des personnes qui achètent un appartement/ une maison sur plan fassent appel à moi. Ils ne sont pas satisfaits de la disposition proposée par le constructeur et n'arrivent pas pour autant à la modifier de façon optimum.
Je leur propose une nouvelle disposition pour fonctionnaliser tous les espaces. Je propose des vues 3D afin qu'ils arrivent à visualiser pleinement les espaces ! Ils peuvent même me donner les dimensions réelles de leur canapé ou leur table à manger afin que je les intègre. Cela permet de s'assurer du rendu, afin de partir sur les travaux de façon plus apaisée et plus sûre !


Appartement sur plan Appartement sur plan Appartement sur plan Appartement sur plan Appartement sur plan Appartement sur plan Appartement sur plan Appartement sur plan
Haut de page.